Maintenance Cutter Dredger

The articulated swing cutter dredgers are self-maneuvering, demountable dredgers mainly used for maintenance of canals, waterways, rivers, harbors, and small sand mining purposes. We have two types of maintenance dredgers; the compact swing and articulated ladder cutter dredger

Maintenance (8)

The Compact Swing Cutter Dredger

This dredger has a fully welded body with two square pontoons positioned on each side. On top of the floaters are platforms with railings installed. The engine room is in the middle of the two pontoons, and the control room is in front of the engine room. The movement of the cutter head is both vertical and horizontal, which is accomplished by cylinders. In this manner, the cutter unit is capable of sweeping instead of moving the complete dredger. These cutter dredgers can be equipped with an electric or hydraulic cutter head which has cutting knives or teeth installed. The Swing dredger is easy to transport.

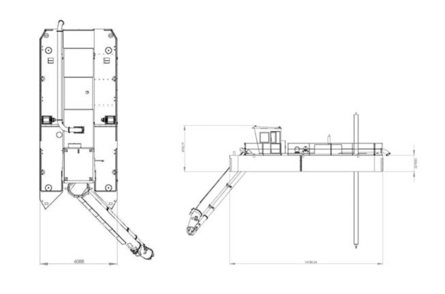
The Articulated Ladder Swing Dredger

The suction pipe swings and lowers hydraulically. It comes standard with a cutter head and an optional water jet system. Because of the unique design, this dredger can be (dis-)assembled and transported easily in shipping containers or on trucks. There are two walking spuds on the bow of the dredger. At the stern, there is a winch and optional possibility for a spud carrier. The spuds can be tilted, and the cabin top removed to get a low strike height above the water level to pass bridges.

We supply maintenance dredgers in a range from 5” to 16.”

Compact Swing Cutter Dredger Design

Compact Swing Cutter Dredger Design

  • Up to 100 Kw power
  • Up to 8m working depth
  • Up to Ø350 Delivery Pipe
  • Up to 314 m³/hr solid materials
  • Up to 560 ton/hr solid materials

Compact Swing Cutter Dredger Options

  • Spuds
  • Spud Carrier
  • Dredge Control
  • Cabin AC
  • Toilet
  • Kitchen
OrangePit-Dredger-768x184
Articulated Ladder Cutter Dredger Design

Articulated Ladder Cutter Dredger Design

  • Up to 45 Kw power
  • Up to 9m working depth
  • Up to Ø300 Delivery Pipe
  • Up to 252 m³/hr solid materials
  • Up to 454 ton/hr solid materials

Articulated Ladder Cutter Dredger Options

  • Winches on the Bow
  • Spud Carrier
  • Water Jet System
  • Luxury cabin, kitchen & AC
  • Dredge GPS system
  • Production measurement Non-R.A.
OrangePit-Dredger-768x184
Menu